
location: Deventer, The Netherlands
type: addition, communal room
date: 2023
key materials: bricks and timber
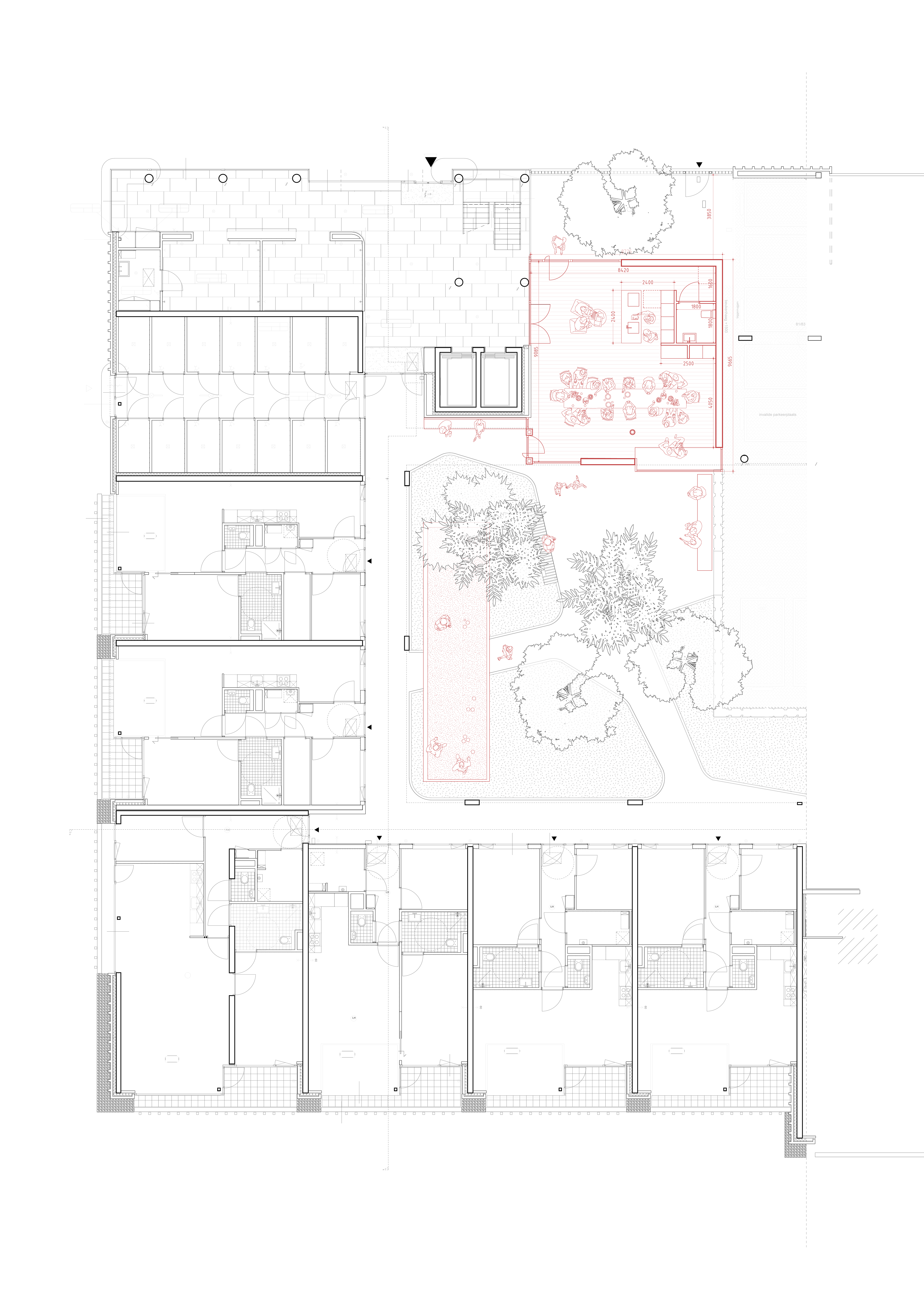
Commissioned to Mecanoo by Woonzorg, an affordable housing provider focusing on senior citizens in The Netherlands, the project involves the design of a new 80 m² communal living room within an existing courtyard block for elderly residents in Deventer. With nearly half of the residents living alone, the ambition was to foster social interaction and reduce isolation among elderly residents by providing a dedicated shared space. The block’s courtyard had become underused, especially during the colder months. Some residents would even walk to a nearby care home just to find a space where they could meet and spend time together.
Conceived as a micro-ethnographic investigation, the project began with site visits and conversations to understand residents’ routines and spatial habits, allowing the brief to evolve collaboratively with the inhabitants. The resulting proposal introduces an 80 m² communal living room inserted within the courtyard, beneath an existing access gallery, and equipped with a pantry and accessible facilities.
Given that the project’s approval required the consent of at least 70% of the residents, the design process was structured around community participation. A series of visual and spatial tools: sketches, maquettes, and short videos, were developed to communicate architectural ideas and gather feedback from the residents, ensuring that the proposal reflected their needs and routines.
Antonio Paoletti as part of Mecanoo